Traumhafte Altbauwohnung in Stadtnähe

zurück zur Übersicht

Lagebeschreibung

Die Wohnung befindet sich in absolut zentraler Lage im Herzen von Wiesbaden, direkt an der renommierten Rheinstraße. Diese Lage zählt zu den begehrtesten Wohnadressen der Stadt und bietet eine perfekte Kombination aus urbanem Leben, historischem Flair und erstklassiger Infrastruktur. Die Rheinstraße selbst ist geprägt von imposanten Altbauten, gepflegten Alleen und einem lebendigen, dennoch niveauvollen Stadtbild. Von der Wohnung aus sind sämtliche Einrichtungen des täglichen Bedarfs bequem und in wenigen Minuten zu Fuß erreichbar – darunter Supermärkte, Bäckereien, Apotheken, Ärzte, Banken sowie zahlreiche Cafés, Restaurants und Boutiquen. Auch kulturelle Highlights wie das Hessische Staatstheater, das Museum Wiesbaden, das Kurhaus und der Schlossplatz befinden sich in unmittelbarer Nähe und laden zu abwechslungsreichen Freizeitaktivitäten ein. Die Anbindung an den öffentlichen Nahverkehr ist hervorragend. Bushaltestellen liegen praktisch vor der Haustür, und der Wiesbadener Hauptbahnhof ist in wenigen Minuten erreichbar, was die Lage auch für Berufspendler nach Frankfurt, Mainz oder zum Flughafen Frankfurt besonders attraktiv macht. Trotz der zentralen Lage bietet das Wohnumfeld eine angenehme Ruhe und eine hohe Lebensqualität. Grünanlagen, wie der nahe gelegene Warmer Damm oder der Kurpark, laden zu Spaziergängen oder sportlichen Aktivitäten im Freien ein.

Objektbeschreibung

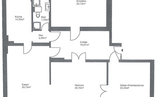
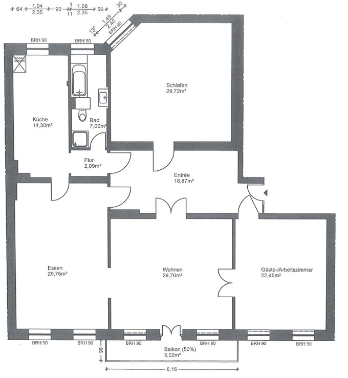
Diese exklusive 4-Zimmer-Wohnung befindet sich im 3. Obergeschoss eines gepflegten Wohnhauses im Herzen von Wiesbaden. Die Wohnung ist ideal geeignet für bis zu drei Personen und überzeugt durch eine hochwertige Ausstattung, eine durchdachte Raumaufteilung und ihre hervorragende Innenstadtlage. Ein Highlight ist der sonnige Balkon mit herrlichem Ausblick auf die Rheinstraße, eine der architektonisch beeindruckendsten Straßen Wiesbadens. Hier lässt sich das städtische Flair in vollen Zügen genießen – sei es beim Frühstück in der Morgensonne oder bei einem Glas Wein am Abend. Die Wohnung verfügt über ein großzügiges Wohnzimmer mit direktem Zugang zum Balkon, ein separates Esszimmer, zwei Schlafzimmer sowie eine vollständig ausgestattete Einbauküche. Das Tageslichtbad ist modern gestaltet und bietet sowohl eine Badewanne als auch eine Dusche. Die Kombination aus klassischer Architektur und modernem Wohnkomfort schafft eine Atmosphäre, in der man sich sofort zu Hause fühlt. Zusätzlich gehört zur Wohnung ein eigener Kellerraum, der weiteren Stauraum bietet. Eine besondere Perle der Wohnung ist sicherlich der Gartenanteil, der als Sondernutzungsrecht zur Wohnung das I-Tüpfelchen verleiht. Mitten in der Stadt leben und trotzdem im Grünen sein. Eine besondere und seltene Gelegenheit. Parkmöglichkeiten bieten sich an der Straße. Parken mit Parkausweis für Anwohner ist hier vorgesehen.

Ausstattung

Haben Sie Fragen zu Ihrer Immobilie? Möchten Sie den aktuellen Marktwert Ihres Hauses oder Ihrer Wohnung erfahren? Rufen Sie uns einfach unverbindlich und kostenlos an! Wir kommen gerne zu Ihnen und beraten Sie umfassend zu allem, was den Immobilienmarkt betrifft. Auch wenn ein Verkauf derzeit nicht geplant ist, lohnt es sich, den Wert Ihrer Immobilie zu kennen. Besuchen Sie uns in der Saalgasse 2 in Wiesbaden – wir freuen uns darauf, Sie persönlich zu begrüßen und all Ihre Fragen zu beantworten!

Sonstiges

Alle in diesem Angebot enthaltenen Angaben, Abmessungen und Preisangaben beruhen auf Angaben des Verkäufers (oder eines Dritten). Heske Volz & Cie GbR kann für die Richtigkeit und Vollständigkeit keine Gewähr übernehmen. Ein Energieausweis nicht notwendig, da das Haus unter Denkmalschutz steht.

Exposé auf Merkzettel
Auf den Merkzettel legen
Vom Merkzettel löschen
Wir rufen Sie zurück
Vielen Dank für Ihre Anfrage. Wir werden uns schnellstmöglichst mit Ihnen in Verbindung setzen.
Exposé
795
Kaufpreis
749.000 €
Wohnfläche
156 m²
Baujahr
1900
Anzahl Zimmer
4